プラン・価格

123HOMEトップページ > プラン・価格 > コンパクトな間口で叶える4LDKプラン

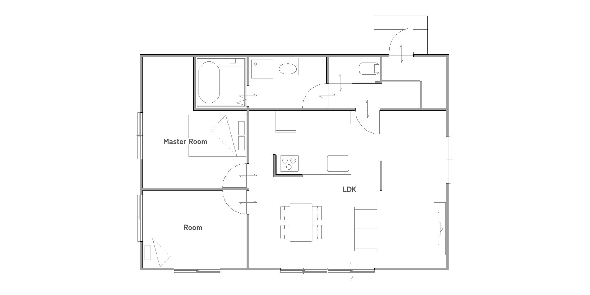
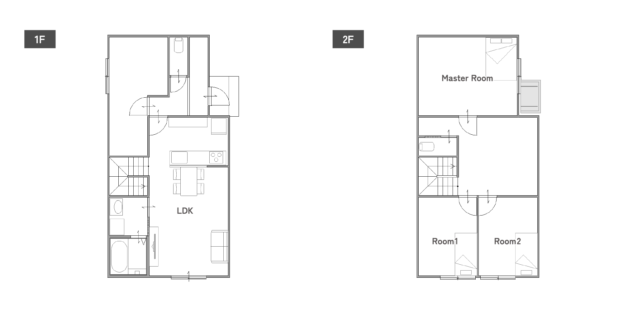
4LDK 2階建て

34

2階建て

コンパクトな間口で叶える4LDKプラン

住み出し価格 2,218 (税込) 万円〜

建物・外構・付帯工事・確認申請・地盤改良・カーテン・エアコン込

その他のプラン・価格

25

平屋

【会員限定】4人家族もゆったり暮らせる平屋プラン

3LDK 平屋

住み出し価格 2,086 (税込) 万円〜

もっと見る
会員限定
オンラインカタログを無料でダウンロードできます
ダウンロードはこちら
無料会員登録ですべてご覧いただけます
新規会員登録はこちら